Bilocale in vendita

San Cesario Sul Panaro, Via A.F. Boschetti
€ 191.000
2 locali 2 locali
80 Mq 80 Mq
2 bagni 2 bagni

Bilocale in vendita

San Cesario Sul Panaro, Via A.F. Boschetti

Descrizione annuncio

L'agenzia affiliata Tecnocasa di Piumazzo propone nuovo intervento edilizio residenziale a San Cesario sul Panaro, in prossimità del centro abitato, in una delle zone più tranquille e comode del Paese.

Nell'intervento residenziale verranno realizzati appartamenti abitativi di ultima generazione. Gli immobili sono progettati per soddisfare moderne esigenze di risparmio energetico e migliorare il comfort abitativo sia interno che esterno. Le caratteristiche costruttive presenteranno tutti gli accorgimenti volti ai risparmi energetici, con possibilità di personalizzazione delle eccellenti finiture.

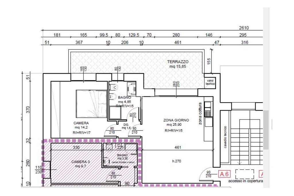
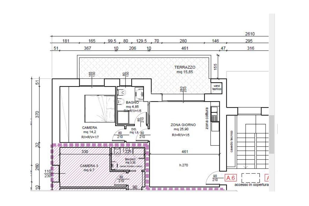
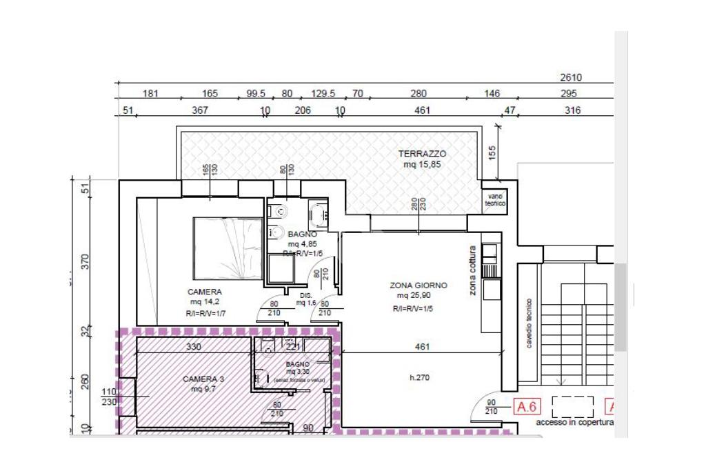
La palazzina sarà composta da 9 appartamenti di ampia metratura tutti con un'autorimessa abbinata già inclusa nel prezzo. Al piano secondo troviamo un ampio bilocale composto da spaziosa sala con angolo cottura, un ampio terrazzo, bagno, ripostiglio e camera da letto matrimoniale.

L'immobile è fornito di impianto di riscaldamento autonomo a pompa di calore con riscaldamento a pavimento e predisposizione di aria condizionata. Sarà inoltre presente un sistema di VMC (ventilazione meccanica) per un corretto ricambio dell'aria e sarà
opportunamente certificato come previsto dalla normativa vigente.

Impianto fotovoltaico indipendente per ogni unità.

Chiamaci per visionare i progetti in agenzia e ricevere il capitolato descrittivo allo 3207694222 o scrivici un email a

Se hai necessità di vendere il tuo immobile, l'agenzia incaricata alle vendite del complesso gestirà l'eventuale permuta in tempo per l'acquisto della tua nuova casa!

Mostra tutto

Nelle vicinanze

Ricariche auto elettriche Ricariche auto elettriche
EnerMia Coop Piumazzo
2,7 Km
BeCharge Spilamberto Ghiarole
2,8 Km
Scuole Scuole
Scuole
330 m
Scuole Medie SanCesario
410 m
Bar Bar
Bar
400 m
Café Mary di Luna
730 m
Bar Sole
800 m
Bar
1,4 Km
BAR Laghi Macchioni
2,6 Km
Ristoranti Ristoranti
Baracchina
660 m
Salentò
700 m
Laghi Balena
1,3 Km
Ristorante pizzera Baraccuda
2,9 Km
Ristoranti
2,9 Km
Mostra tutto

Caratteristiche

Rif.:
60982623
Piano:
2 di 3 con ascensore (Piano alto)
Box:
1
Posti auto:
1
Balconi:
1
Terrazzi:
1
Mostra tutto
Prezzo Prezzo
€ 191.000
Rata mutuo Rata mutuo
€ 900 / mese
Spese annue Spese annue
€ 600
Proponi il tuo prezzoProponi il tuo prezzo

Classe Energetica

A4
A4
A4
A4
A4
A4
A4
A4
A4
EP globale non rinnovabile:
20.40 kW h/m² anno
EP globale rinnovabile:
69.65 kW h/m² anno
EP invernale del fabbricato:
EP estiva del fabbricato:
Anno di costruzione:
2025
Riscaldamento:
Autonomo
Tipo impianto:
A pavimento
Tipo alimentazione:
Pannelli

Ti interessa visionare l'immobile?

Fissa un appuntamento  Fissa un appuntamento

Richiedi informazioni

Clicca su Leggi per aprire l'informativa
* Questi campi sono obbligatori

Calcola il tuo mutuo

Semplice e senza impegno
Anticipo

( % )
Mutuo

( % )

pochi semplici passi

inserisci i tuoi dati
Questionario completato
Grazie per aver richiesto un appuntamento senza impegno con un nostro Consulente del Credito e Assicurativo.

Hai inserito correttamente tutti i dati necessari e a breve riceverai una e-mail con un link da convalidare per inviare i tuoi dati.
Affiliato
Valedipiu' Srl
P.zza della Repubblica, 10 41013 Castelfranco Emilia (MO)

Il nostro staff


  • Valentina Ciccarello
    Affiliata

  • Ilaria Minghetti
    Coordinatrice

  • Pasquale Parente
    Collaboratore

  • Emanuele Pozzi
    Collaboratore
P.zza della Repubblica, 10 41013 Castelfranco Emilia (MO)
Zona: Piumazzo – Cavazzona – Madonna della Provvidenza – San Cesario sul Panaro – Sant'Anna
Mostra su mappa
Orari: I nostri servizi sono disponibili in filiale dal lunedì al venerdì dalle ore 09.00 alle 12.30 e dalle 15.00 alle 19.30, sabato mattina dalle 09.00 alle 12.30.
Affiliato
Valedipiu' Srl
P.zza della Repubblica, 10 41013 Castelfranco Emilia (MO)

2026 Tecnocasa Franchising S.p.A. - P. IVA 08365160152 - Via Monte Bianco 60/A 20089 Rozzano (MI). Ogni agenzia ha un proprio titolare ed è autonoma. Privacy policy | Policy utilizzo | Cookie policy