Ter. residenziale in vendita

Piumazzo, Piazza della Repubblica
€ 60.000
5 locali 5 locali
500 Mq 500 Mq

Ter. residenziale in vendita

Piumazzo, Piazza della Repubblica

Descrizione annuncio

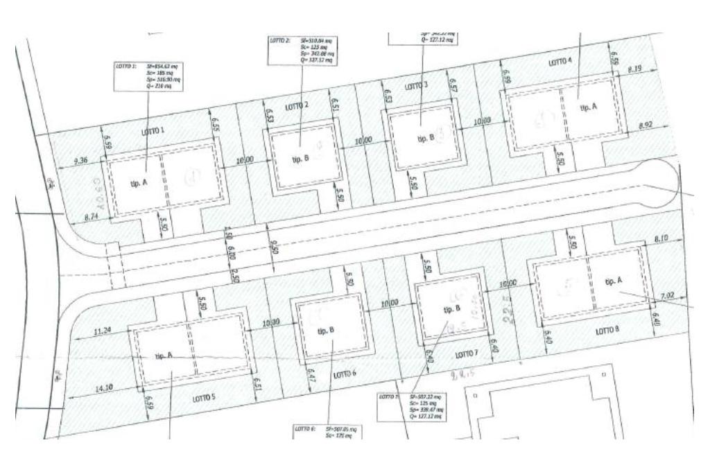
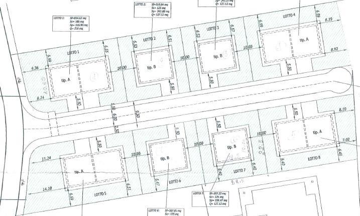
L'ufficio Tecnocasa di Piumazzo, frazione di Castelfranco Emilia propone in vendita a Piumazzo in zona limitrofa al centro del paese, lotto edificabile comodo a tutti i servizi in corte esclusiva, già urbanizzato e pronto per costruire.

Il lotto è ideale per la costruzione di una monofamiliare con 240 mq edificabili.

Per maggiori informazioni potete contattarci via mail a Potete trovarci anche su WHATSAPP al numero 3207694222.

Se decidi di vendere il TUO immobile con NOI, in esclusiva, tra i nostri servizi offriamo GRATUITAMENTE:

Valutazione del reale prezzo di mercato con TecnoValore: software esclusivo in dotazione alle agenzie del GRUPPO che ci supporta nella definizione del prezzo degli immobili, grazie all'applicazione di metodologie statistiche che elaborano i dati su compravendite effettuate nella zona di interesse.

Mostra tutto

Nelle vicinanze

Trasporto pubblico Trasporto pubblico
Villa Faloppie
Villa Faloppie
2,9 Km
Ricariche auto elettriche Ricariche auto elettriche
EnerMia Coop Piumazzo
120 m
Scuole Scuole
Scuole
530 m
Bar Bar
Bar
2,8 Km
Mostra tutto

Caratteristiche

Rif.:
61141927
Piano:
2 di 1 (Piano terra)
Arredamento:
Assente
Condizionamento:
Autonomo
Ascensore:
No
Riscaldamento:
Autonomo
Mostra tutto
Prezzo Prezzo
€ 60.000
Rata mutuo Rata mutuo
€ 283 / mese
Proponi il tuo prezzoProponi il tuo prezzo

Classe Energetica

G
G
G
G
G
G
G
G
G
EP globale non rinnovabile:
295.12 kW h/m² anno
EP invernale del fabbricato:
EP estiva del fabbricato:
Riscaldamento:
Autonomo
Tipo impianto:
A pavimento
Tipo alimentazione:
Metano

Ti interessa visionare l'immobile?

Fissa un appuntamento  Fissa un appuntamento

Richiedi informazioni

Clicca su Leggi per aprire l'informativa
* Questi campi sono obbligatori

Calcola il tuo mutuo

Semplice e senza impegno
Anticipo

( % )
Mutuo

( % )

pochi semplici passi

inserisci i tuoi dati
Questionario completato
Grazie per aver richiesto un appuntamento senza impegno con un nostro Consulente del Credito e Assicurativo.

Hai inserito correttamente tutti i dati necessari e a breve riceverai una e-mail con un link da convalidare per inviare i tuoi dati.
Affiliato
Valedipiu' Srl
P.zza della Repubblica, 10 41013 Castelfranco Emilia (MO)

Il nostro staff


  • Valentina Ciccarello
    Affiliata

  • Ilaria Minghetti
    Coordinatrice

  • Pasquale Parente
    Collaboratore

  • Emanuele Pozzi
    Collaboratore
P.zza della Repubblica, 10 41013 Castelfranco Emilia (MO)
Zona: Piumazzo – Cavazzona – Madonna della Provvidenza – San Cesario sul Panaro – Sant'Anna
Mostra su mappa
Orari: I nostri servizi sono disponibili in filiale dal lunedì al venerdì dalle ore 09.00 alle 12.30 e dalle 15.00 alle 19.30, sabato mattina dalle 09.00 alle 12.30.
Affiliato
Valedipiu' Srl
P.zza della Repubblica, 10 41013 Castelfranco Emilia (MO)

2026 Tecnocasa Franchising S.p.A. - P. IVA 08365160152 - Via Monte Bianco 60/A 20089 Rozzano (MI). Ogni agenzia ha un proprio titolare ed è autonoma. Privacy policy | Policy utilizzo | Cookie policy