Bilocale in vendita

Piumazzo, Piazza della Repubblica
€ 133.200
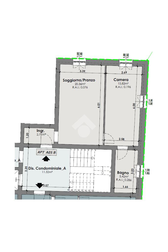
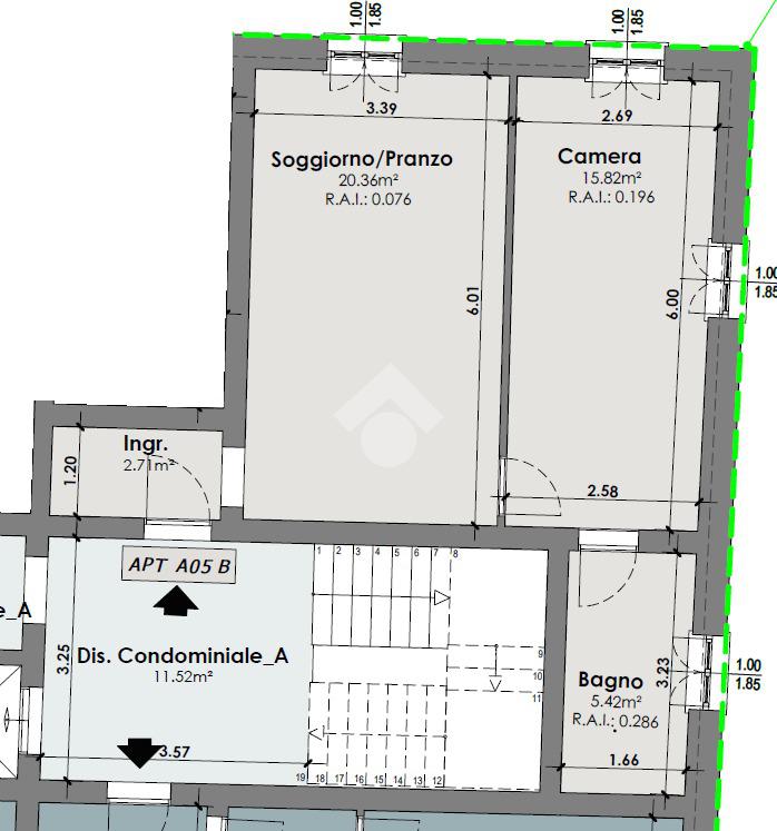
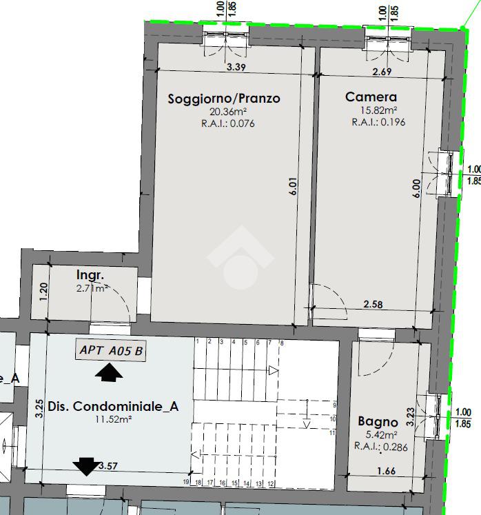
2 locali 2 locali
58 Mq 58 Mq

Bilocale in vendita

Piumazzo, Piazza della Repubblica

Descrizione annuncio

L'agenzia affiliata Tecnocasa di Piumazzo, frazione di Modena, propone in vendita a Piumazzo, in pieno centro e comodo a tutti i servizi del Paese, Nuovo intervento edilizio e di risanamento conservativo in Classe A.

L’intervento tratta due fabbricati sviluppati su tre piani fuori terra e sarà caratterizzato da diverse tipologie, ciascuna con particolari e peculiari unici.

Gli immobili potranno essere personalizzati in tutte le finiture interne.

Dotati di riscaldamento a pavimento, predisposizione dell’impianto di raffrescamento autonomo , impianto fotovoltaico, infissi con scuri in legno, ventilazione meccanica e tutte le finiture di un immobile in classe A e di impronta moderna.

Per fissare una visita o per maggiori informazioni potete contattarci via mail a Potete trovarci anche su WHATSAPP al numero 3207694222 e vieni a scoprire l’intera progettazione!

Ogni unità abitativa sarà dotata di un'autorimessa di proprietà.

Se decidi di vendere il TUO immobile con NOI, in esclusiva, tra i nostri servizi offriamo GRATUITAMENTE:

Valutazione del reale prezzo di mercato con TecnoValore: software esclusivo in dotazione alle agenzie del GRUPPO che ci supporta nella definizione del prezzo degli immobili, grazie all'applicazione di metodologie statistiche che elaborano i dati su compravendite effettuate nella zona di interesse.

Mostra tutto

Nelle vicinanze

Trasporto pubblico Trasporto pubblico
Villa Faloppie
Villa Faloppie
2,9 Km
Ricariche auto elettriche Ricariche auto elettriche
EnerMia Coop Piumazzo
120 m
Scuole Scuole
Scuole
530 m
Bar Bar
Bar
2,8 Km
Mostra tutto

Caratteristiche

Rif.:
61192512
Piano:
1 di 2 con ascensore (Piano basso)
Box:
1
Camere da letto:
1
Arredamento:
Assente
Condizionamento:
Predisposizione impianto
Mostra tutto
Prezzo Prezzo
€ 133.200
Rata mutuo Rata mutuo
€ 628 / mese
Proponi il tuo prezzoProponi il tuo prezzo

Classe Energetica

A1
A1
A1
A1
A1
A1
A1
A1
A1
EP globale non rinnovabile:
12.00 kW h/m² anno
EP globale rinnovabile:
14.00 kW h/m² anno
EP invernale del fabbricato:
EP estiva del fabbricato:
Anno di costruzione:
2026
Riscaldamento:
Autonomo
Tipo impianto:
A pavimento
Tipo alimentazione:
Pannelli

Ti interessa visionare l'immobile?

Fissa un appuntamento  Fissa un appuntamento

Richiedi informazioni

Clicca su Leggi per aprire l'informativa
* Questi campi sono obbligatori

Calcola il tuo mutuo

Semplice e senza impegno
Anticipo

( % )
Mutuo

( % )

pochi semplici passi

inserisci i tuoi dati
Questionario completato
Grazie per aver richiesto un appuntamento senza impegno con un nostro Consulente del Credito e Assicurativo.

Hai inserito correttamente tutti i dati necessari e a breve riceverai una e-mail con un link da convalidare per inviare i tuoi dati.
Affiliato
Valedipiu' Srl
P.zza della Repubblica, 10 41013 Castelfranco Emilia (MO)

Il nostro staff


  • Valentina Ciccarello
    Affiliata

  • Ilaria Minghetti
    Coordinatrice

  • Pasquale Parente
    Collaboratore

  • Emanuele Pozzi
    Collaboratore
P.zza della Repubblica, 10 41013 Castelfranco Emilia (MO)
Zona: Piumazzo – Cavazzona – Madonna della Provvidenza – San Cesario sul Panaro – Sant'Anna
Mostra su mappa
Orari: I nostri servizi sono disponibili in filiale dal lunedì al venerdì dalle ore 09.00 alle 12.30 e dalle 15.00 alle 19.30, sabato mattina dalle 09.00 alle 12.30.
Affiliato
Valedipiu' Srl
P.zza della Repubblica, 10 41013 Castelfranco Emilia (MO)

2026 Tecnocasa Franchising S.p.A. - P. IVA 08365160152 - Via Monte Bianco 60/A 20089 Rozzano (MI). Ogni agenzia ha un proprio titolare ed è autonoma. Privacy policy | Policy utilizzo | Cookie policy