Quadrilocale in vendita

Piumazzo, Via Fabio Filzi
€ 270.000
4 locali 4 locali
110 Mq 110 Mq
2 bagni 2 bagni

Quadrilocale in vendita

Piumazzo, Via Fabio Filzi

Descrizione annuncio

L'agenzia affiliata Tecnocasa di Piumazzo, frazione di Modena, propone in vendita a Piumazzo, in pieno centro e comodo a tutti i servizi del Paese, Nuovo intervento edilizio in Classe A4 energia costo zero!

L'immobile proposto si trova al piano terra con esposizione a Est, in un contesto esclusivo in strada a fondo chiuso e in palazzina di sole 10 unità servita da ascensore.

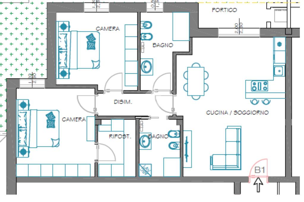
Accediamo alla soluzione tramite un comodo ingresso che sfocia sull'ampia zona giorno dove troviamo la comoda zona relax e pranzo con cucina a vista e ampia vetrata che permette l’ accesso al giardino privato, disimpegno, due bagni con doccia, comodo ripostiglio con angolo lavanderia e due camere da letto.

Zona residenziale rinomata per la sua tranquillità, a due passi dal centro del Paese e comodo a tutti i servizi.

L'immobile è dotato di riscaldamento e raffrescamento autonomo ad aria, impianto fotovoltaico esclusivo di 3 kw con batterie di accumulo di 5 kw, infissi triplo vetro, zanzariere, tapparelle motorizzate e tutte le finiture di un immobile in classe A4.

L'immobile è completo di un' autorimessa di proprietà.

Possibilità di scelta delle finiture interne, pavimenti, rivestimenti e porte. Piatti doccia a filo pavimento.

Per per maggiori informazioni potete contattarci via mail a Potete trovarci anche su WHATSAPP al numero 3207694222.

Se decidi di vendere il TUO immobile con NOI, in esclusiva, tra i nostri servizi offriamo GRATUITAMENTE:

Valutazione del reale prezzo di mercato con TecnoValore: software esclusivo in dotazione alle agenzie del GRUPPO che ci supporta nella definizione del prezzo degli immobili, grazie all'applicazione di metodologie statistiche che elaborano i dati su compravendite effettuate nella zona di interesse.

Mostra tutto

Nelle vicinanze

Trasporto pubblico Trasporto pubblico
Villa Faloppie
Villa Faloppie
3,0 Km
Ricariche auto elettriche Ricariche auto elettriche
EnerMia Coop Piumazzo
40 m
Scuole Scuole
Scuole
630 m
Bar Bar
Bar
2,9 Km
Mostra tutto

Caratteristiche

Rif.:
61112898
Piano:
Terra di 3 con ascensore
Totale piani:
3
Box:
1
Camere da letto:
2
Arredamento:
Assente
Mostra tutto
Prezzo Prezzo
€ 270.000
Rata mutuo Rata mutuo
€ 1.272 / mese
Spese annue Spese annue
€ 500
Proponi il tuo prezzoProponi il tuo prezzo

Classe Energetica

A4
A4
A4
A4
A4
A4
A4
A4
A4
EP globale non rinnovabile:
12.00 kW h/m² anno
EP globale rinnovabile:
12.00 kW h/m² anno
EP invernale del fabbricato:
EP estiva del fabbricato:
Anno di costruzione:
2025
Riscaldamento:
Autonomo
Tipo impianto:
Ad aria
Tipo alimentazione:
Altro

Ti interessa visionare l'immobile?

Fissa un appuntamento  Fissa un appuntamento

Richiedi informazioni

Clicca su Leggi per aprire l'informativa
* Questi campi sono obbligatori

Calcola il tuo mutuo

Semplice e senza impegno
Anticipo

( % )
Mutuo

( % )

pochi semplici passi

inserisci i tuoi dati
Questionario completato
Grazie per aver richiesto un appuntamento senza impegno con un nostro Consulente del Credito e Assicurativo.

Hai inserito correttamente tutti i dati necessari e a breve riceverai una e-mail con un link da convalidare per inviare i tuoi dati.
Affiliato
Valedipiu' Srl
P.zza della Repubblica, 10 41013 Castelfranco Emilia (MO)

Il nostro staff


  • Valentina Ciccarello
    Affiliata

  • Ilaria Minghetti
    Coordinatrice

  • Pasquale Parente
    Collaboratore

  • Emanuele Pozzi
    Collaboratore
P.zza della Repubblica, 10 41013 Castelfranco Emilia (MO)
Zona: Piumazzo – Cavazzona – Madonna della Provvidenza – San Cesario sul Panaro – Sant'Anna
Mostra su mappa
Orari: I nostri servizi sono disponibili in filiale dal lunedì al venerdì dalle ore 09.00 alle 12.30 e dalle 15.00 alle 19.30, sabato mattina dalle 09.00 alle 12.30.
Affiliato
Valedipiu' Srl
P.zza della Repubblica, 10 41013 Castelfranco Emilia (MO)

2026 Tecnocasa Franchising S.p.A. - P. IVA 08365160152 - Via Monte Bianco 60/A 20089 Rozzano (MI). Ogni agenzia ha un proprio titolare ed è autonoma. Privacy policy | Policy utilizzo | Cookie policy