Trilocale in vendita

Marano Sul Panaro, Via Carlo Collodi
€ 300.000
3 locali 3 locali
152 Mq 152 Mq
2 bagni 2 bagni

Trilocale in vendita

Marano Sul Panaro, Via Carlo Collodi

Descrizione annuncio

L'agenzia affiliata Tecnocasa di Piumazzo, frazione di Modena, propone in vendita a Marano sul Panaro, comodo a tutti i servizi del Paese, Nuovo intervento edilizio in Classe A4 energia costo zero!

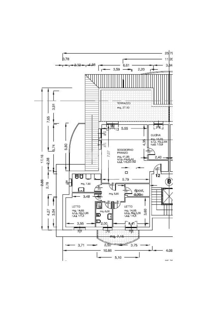
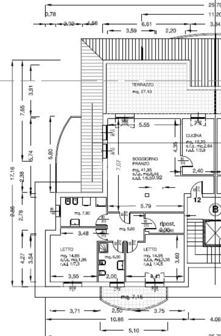
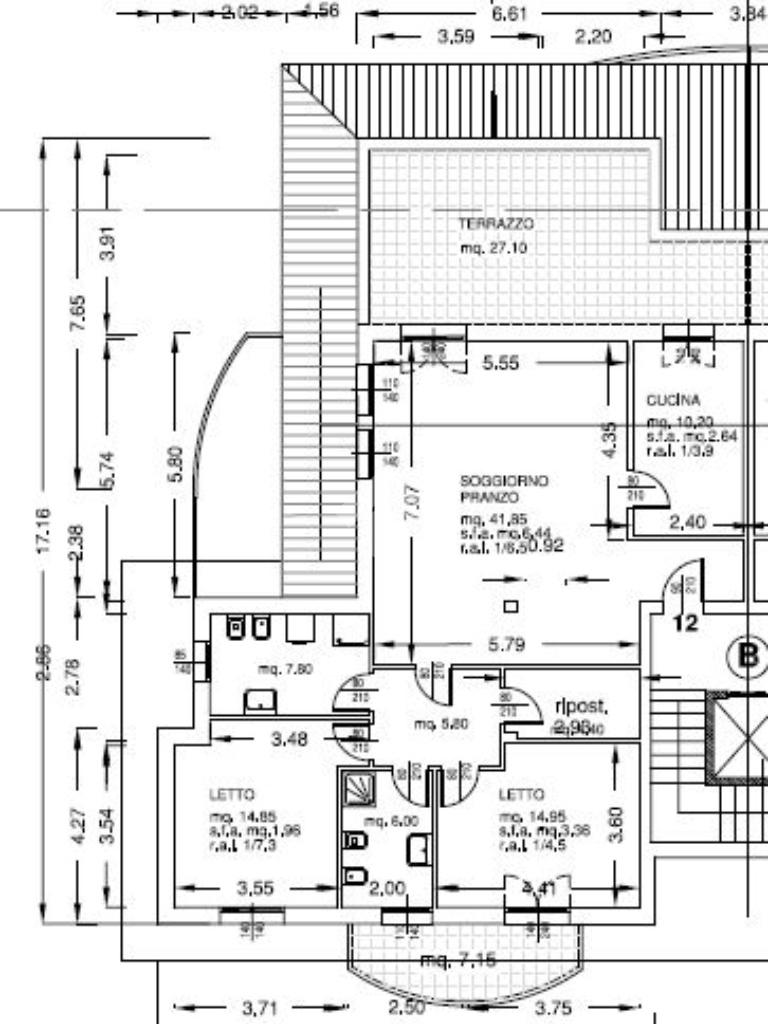
L'immobile proposto si trova al terzo piano, in un contesto esclusivo in strada a fondo chiuso e in palazzina di sole 12 unità servita da ascensore.

Accediamo alla soluzione tramite un comodo ingresso che sfocia sull'ampia e luminosa zona giorno di 45 metri quadri con cucina abitabile e terrazzo abitabile di 27 metri; 2 camere matrimoniali di cui una con cabina armadio e bagni.

Zona residenziale rinomata per la sua tranquillità, a due passi dal centro del Paese e comodo a tutti i servizi.

L'immobile è dotato di riscaldamento e raffrescamento autonomo ad aria, impianto fotovoltaico esclusivo di 3 kw con batterie di accumulo di 5 kw, infissi triplo vetro, zanzariere, tapparelle motorizzate e tutte le finiture di un immobile in classe A4.

L'immobile è completo di un' autorimessa di proprietà.

Possibilità di scelta delle finiture interne, pavimenti, rivestimenti e porte. Piatti doccia a filo pavimento.

Consegna primavera 2027

Per per maggiori informazioni potete contattarci via mail a Potete trovarci anche su WHATSAPP al numero 3207694222.

Se decidi di vendere il TUO immobile con NOI, in esclusiva, tra i nostri servizi offriamo GRATUITAMENTE:

Valutazione del reale prezzo di mercato con TecnoValore: software esclusivo in dotazione alle agenzie del GRUPPO che ci supporta nella definizione del prezzo degli immobili, grazie all'applicazione di metodologie statistiche che elaborano i dati su compravendite effettuate nella zona di interesse.

Mostra tutto

Nelle vicinanze

Ricariche auto elettriche Ricariche auto elettriche
Savignano sul Panaro Artigianato | EnelX
2,1 Km
Scuole Scuole
Scuola elementare E. De Amicis
350 m
Scuole
3,0 Km
Bar Bar
Jessica
540 m
Ristoranti Ristoranti
Antica Trattoria Moretto
1,3 Km
Trattoria La Torre
2,1 Km
Mostra tutto

Caratteristiche

Rif.:
61131090
Piano:
3 di 3 con ascensore (Piano alto)
Box:
1
Terrazzi:
2
Camere da letto:
2
Arredamento:
Assente
Mostra tutto
Prezzo Prezzo
€ 300.000
Rata mutuo Rata mutuo
€ 1.414 / mese
Proponi il tuo prezzoProponi il tuo prezzo

Classe Energetica

A4
A4
A4
A4
A4
A4
A4
A4
A4
EP globale non rinnovabile:
14.00 kW h/m² anno
EP globale rinnovabile:
12.00 kW h/m² anno
EP invernale del fabbricato:
EP estiva del fabbricato:
Anno di costruzione:
2025
Riscaldamento:
Autonomo
Tipo impianto:
Ad aria
Tipo alimentazione:
Altro

Ti interessa visionare l'immobile?

Fissa un appuntamento  Fissa un appuntamento

Richiedi informazioni

Clicca su Leggi per aprire l'informativa
* Questi campi sono obbligatori

Calcola il tuo mutuo

Semplice e senza impegno
Anticipo

( % )
Mutuo

( % )

pochi semplici passi

inserisci i tuoi dati
Questionario completato
Grazie per aver richiesto un appuntamento senza impegno con un nostro Consulente del Credito e Assicurativo.

Hai inserito correttamente tutti i dati necessari e a breve riceverai una e-mail con un link da convalidare per inviare i tuoi dati.
Affiliato
Valedipiu' Srl
P.zza della Repubblica, 10 41013 Castelfranco Emilia (MO)

Il nostro staff


  • Valentina Ciccarello
    Affiliata

  • Ilaria Minghetti
    Coordinatrice

  • Pasquale Parente
    Collaboratore

  • Emanuele Pozzi
    Collaboratore
P.zza della Repubblica, 10 41013 Castelfranco Emilia (MO)
Zona: Piumazzo – Cavazzona – Madonna della Provvidenza – San Cesario sul Panaro – Sant'Anna
Mostra su mappa
Orari: I nostri servizi sono disponibili in filiale dal lunedì al venerdì dalle ore 09.00 alle 12.30 e dalle 15.00 alle 19.30, sabato mattina dalle 09.00 alle 12.30.
Affiliato
Valedipiu' Srl
P.zza della Repubblica, 10 41013 Castelfranco Emilia (MO)

2026 Tecnocasa Franchising S.p.A. - P. IVA 08365160152 - Via Monte Bianco 60/A 20089 Rozzano (MI). Ogni agenzia ha un proprio titolare ed è autonoma. Privacy policy | Policy utilizzo | Cookie policy