Bilocale in vendita

Castelfranco Emilia, Via Emilia Est - Cavazzona
€ 108.000
2 locali 2 locali
40 Mq 40 Mq
1 bagno 1 bagno

Bilocale in vendita

Castelfranco Emilia, Via Emilia Est - Cavazzona

Descrizione annuncio

L'ufficio Tecnocasa di Piumazzo frazione di Castelfranco Emilia, Modena, propone in vendita a Cavazzona, a metà strada tra Modena e Bologna, bilocale al secondo ed ultimo piano servito da ascensore.

L'immobile si trova in una palazzina completamente ristrutturata a nuovo.
Infissi e velux nuovi motorizzati, pompa di calore e raffrescamento nuovo e ricarica per auto elettrica in garage.
Alta efficienza energetica.

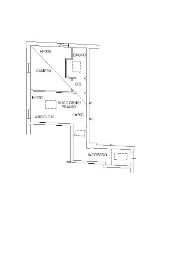
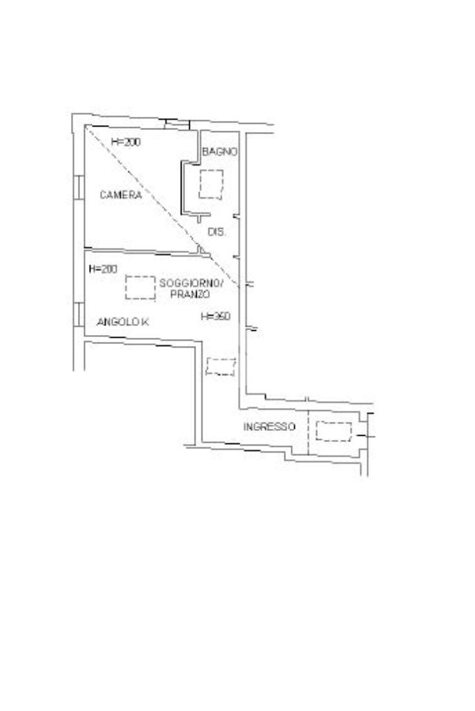
L'appartamento presenta l'ingresso su un comodo corridoio, sala con angolo cottura a vista con piano ad induzione, di seguito il disipegno che ci conduce alla camera matrimoniale e al bagno con box doccia e angolo lavatrice.

In tutto l'appartamento troviamo le travi a vista.

Libero subito e consegnato parzialmente arredato.

Completo di autorimessa e posto auto riservato.

Per fissare una visita o per maggiori informazioni potete contattarci via mail all'indirizzo. Potete trovarci anche su WHATSAPP al numero.

Se decidi di vendere il TUO immobile con NOI, in esclusiva, tra i nostri servizi offriamo GRATUITAMENTE:

Valutazione del reale prezzo di mercato con TecnoValore: software esclusivo in dotazione alle agenzie del GRUPPO che ci supporta nella definizione del prezzo degli immobili, grazie all'applicazione di metodologie statistiche che elaborano i dati su compravendite effettuate nella zona di fotografico sui maggiori siti di fiducia ABILITATO per la redazione della CERTIFICAZIONE ENERGETICA e della DICHIARAZIONE di CONFORMITA' CATASTALE.

Mostra tutto

Nelle vicinanze

Trasporto pubblico Trasporto pubblico
stazione di Samoggia
stazione di Samoggia
2,5 Km
Cavazzona
Cavazzona
30 m
Cavazzona Casa Cantoniera
Cavazzona Casa Cantoniera
740 m
Ricariche auto elettriche Ricariche auto elettriche
EnerMia Chiesa San Bartolomeo di Manzolino
2,6 Km
Scuole Scuole
Guglielmo Marconi
2,6 Km
edificio scolastico temporaneo
2,6 Km
mensa plesso 'Don Milani'
2,7 Km
Farmacia Farmacia
Farmacia
2,8 Km
Supermercati Supermercati
Carrefour Market
1,8 Km
Conad
2,7 Km
Ristoranti Ristoranti
Osteria della Cavazzona
30 m
Trattoria km 131
110 m
Ristoranti
270 m
Mithò
2,7 Km
Mostra tutto

Caratteristiche

Rif.:
61168300
Piano:
2 di 2 con ascensore (Piano alto)
Box:
1
Posti auto:
1
Camere da letto:
1
Arredamento:
Parziale
Mostra tutto
Prezzo Prezzo
€ 108.000
Rata mutuo Rata mutuo
€ 509 / mese
Spese annue Spese annue
€ 800
Proponi il tuo prezzoProponi il tuo prezzo

Classe Energetica

B
B
B
B
B
B
B
B
B
EP globale non rinnovabile:
12.00 kW h/m² anno
EP globale rinnovabile:
12.00 kW h/m² anno
Anno di costruzione:
2008
Riscaldamento:
Centralizzato
Tipo impianto:
Ad aria
Tipo alimentazione:
Pannelli

Ti interessa visionare l'immobile?

Fissa un appuntamento  Fissa un appuntamento

Richiedi informazioni

Clicca su Leggi per aprire l'informativa
* Questi campi sono obbligatori

Calcola il tuo mutuo

Semplice e senza impegno
Anticipo

( % )
Mutuo

( % )

pochi semplici passi

inserisci i tuoi dati
Questionario completato
Grazie per aver richiesto un appuntamento senza impegno con un nostro Consulente del Credito e Assicurativo.

Hai inserito correttamente tutti i dati necessari e a breve riceverai una e-mail con un link da convalidare per inviare i tuoi dati.
Affiliato
Valedipiu' Srl
P.zza della Repubblica, 10 41013 Castelfranco Emilia (MO)

Il nostro staff


  • Valentina Ciccarello
    Affiliata

  • Ilaria Minghetti
    Coordinatrice

  • Pasquale Parente
    Collaboratore

  • Emanuele Pozzi
    Collaboratore
P.zza della Repubblica, 10 41013 Castelfranco Emilia (MO)
Zona: Piumazzo – Cavazzona – Madonna della Provvidenza – San Cesario sul Panaro – Sant'Anna
Mostra su mappa
Orari: I nostri servizi sono disponibili in filiale dal lunedì al venerdì dalle ore 09.00 alle 12.30 e dalle 15.00 alle 19.30, sabato mattina dalle 09.00 alle 12.30.
Affiliato
Valedipiu' Srl
P.zza della Repubblica, 10 41013 Castelfranco Emilia (MO)

2026 Tecnocasa Franchising S.p.A. - P. IVA 08365160152 - Via Monte Bianco 60/A 20089 Rozzano (MI). Ogni agenzia ha un proprio titolare ed è autonoma. Privacy policy | Policy utilizzo | Cookie policy