Quadrilocale in vendita

Castelfranco Emilia, Via bruzzi - Cavazzona
€ 192.000
4 locali 4 locali
112 Mq 112 Mq
2 bagni 2 bagni

Quadrilocale in vendita

Castelfranco Emilia, Via bruzzi - Cavazzona

Descrizione annuncio

L'agenzia affiliata Tecnocasa di Piumazzo, frazione di Modena, propone in vendita a Cavazzona, a metà strada tra Modena e Bologna e con vicinanza al casello autostrada di Valsamoggia.

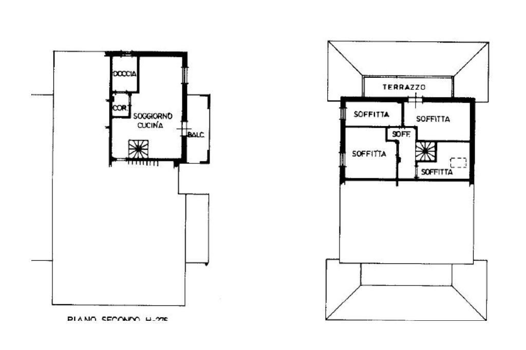
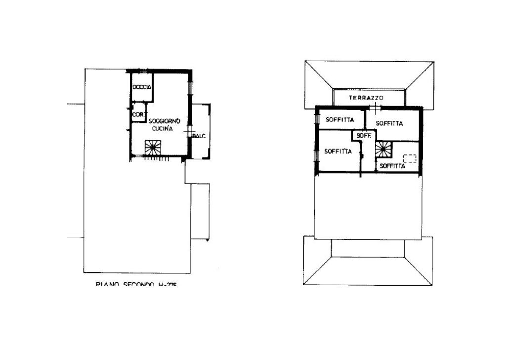
L'immobile proposto si trova in palazzina pietra vista di sole 8 unità abitative, posto al secondo ed ultimo piano, disposto su due livelli.

Accediamo alla soluzione tramite un comodo ingresso che sfocia sull'ampia zona giorno dove troviamo la comoda zona relax e pranzo con cucina a vista e accesso al primo terrazzo, disimpegno con armadio a muro e bagno con doccia.

Tramite una comoda scala interna, accediamo al reparto mansarda dove è dislocata la zona notte con due camere da letto di cui una con balcone, bagno con vasca e terzaq camera come ripostiglio/cabina armadio. Tutti gli ambienti sono finestrati.

L'immobile presenta il riscaldamento autonomo, scuri in legno, inferriate, zanzariere e clima con pompa di calore.

L'immobile è completo di un' autorimessa di proprietà finestrata al piano terra.

Già libero, disponibile da subito.

Per fissare una visita o per maggiori informazioni potete contattarci via mail a Potete trovarci anche su WHATSAPP al numero 3207694222.

Se decidi di vendere il TUO immobile con NOI, in esclusiva, tra i nostri servizi offriamo GRATUITAMENTE:

Valutazione del reale prezzo di mercato con TecnoValore: software esclusivo in dotazione alle agenzie del GRUPPO che ci supporta nella definizione del prezzo degli immobili, grazie all'applicazione di metodologie statistiche che elaborano i dati su compravendite effettuate nella zona di interesse.

Mostra tutto

Nelle vicinanze

Trasporto pubblico Trasporto pubblico
stazione di Samoggia
stazione di Samoggia
2,7 Km
Cavazzona
Cavazzona
340 m
Cavazzona Casa Cantoniera
Cavazzona Casa Cantoniera
960 m
Ricariche auto elettriche Ricariche auto elettriche
EnerMia Chiesa San Bartolomeo di Manzolino
2,3 Km
Scuole Scuole
Guglielmo Marconi
2,3 Km
edificio scolastico temporaneo
2,3 Km
mensa plesso 'Don Milani'
2,3 Km
Farmacia Farmacia
Farmacia
2,5 Km
Supermercati Supermercati
Carrefour Market
2,0 Km
Conad
2,4 Km
Ristoranti Ristoranti
Ristoranti
230 m
Trattoria km 131
300 m
Osteria della Cavazzona
330 m
Mithò
2,3 Km
Mostra tutto

Caratteristiche

Rif.:
61168082
Piano:
2 di 3 (Piano medio)
Box:
1
Posti auto:
1
Balconi:
1
Terrazzi:
1
Mostra tutto
Prezzo Prezzo
€ 192.000
Rata mutuo Rata mutuo
€ 905 / mese
Spese annue Spese annue
€ 1.400
Proponi il tuo prezzoProponi il tuo prezzo

Classe Energetica

F
F
F
F
F
F
F
F
F
EP globale non rinnovabile:
175.00 kW h/m² anno
EP globale rinnovabile:
175.00 kW h/m² anno
EP invernale del fabbricato:
EP estiva del fabbricato:
Anno di costruzione:
2000
Riscaldamento:
Autonomo
Tipo impianto:
A radiatori
Tipo alimentazione:
Metano

Ti interessa visionare l'immobile?

Fissa un appuntamento  Fissa un appuntamento

Richiedi informazioni

Clicca su Leggi per aprire l'informativa
* Questi campi sono obbligatori

Calcola il tuo mutuo

Semplice e senza impegno
Anticipo

( % )
Mutuo

( % )

pochi semplici passi

inserisci i tuoi dati
Questionario completato
Grazie per aver richiesto un appuntamento senza impegno con un nostro Consulente del Credito e Assicurativo.

Hai inserito correttamente tutti i dati necessari e a breve riceverai una e-mail con un link da convalidare per inviare i tuoi dati.
Affiliato
Valedipiu' Srl
P.zza della Repubblica, 10 41013 Castelfranco Emilia (MO)

Il nostro staff


  • Valentina Ciccarello
    Affiliata

  • Ilaria Minghetti
    Coordinatrice

  • Pasquale Parente
    Collaboratore

  • Emanuele Pozzi
    Collaboratore
P.zza della Repubblica, 10 41013 Castelfranco Emilia (MO)
Zona: Piumazzo – Cavazzona – Madonna della Provvidenza – San Cesario sul Panaro – Sant'Anna
Mostra su mappa
Orari: I nostri servizi sono disponibili in filiale dal lunedì al venerdì dalle ore 09.00 alle 12.30 e dalle 15.00 alle 19.30, sabato mattina dalle 09.00 alle 12.30.
Affiliato
Valedipiu' Srl
P.zza della Repubblica, 10 41013 Castelfranco Emilia (MO)

2026 Tecnocasa Franchising S.p.A. - P. IVA 08365160152 - Via Monte Bianco 60/A 20089 Rozzano (MI). Ogni agenzia ha un proprio titolare ed è autonoma. Privacy policy | Policy utilizzo | Cookie policy